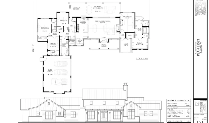
25023