Geschke Group Architecture
Home
|
Design Portfolio & Projects
|
Residential
|
On the Boards
|
Profile
|
Our Approach
|
About Us
|
Services
|
Awards
|
Testimonials
|
Resources
|
Downloads
|
Helpful Links
|
Blog
|
Contact
|
Contact Information
|
Map & Directions
|
Plan Collection
|
Home
Design Portfolio & Projects
Residential
On the Boards
Profile
Our Approach
About Us
Services
Awards
Testimonials
Resources
Downloads
Helpful Links
Blog
Contact
Contact Information
Map & Directions
Plan Collection
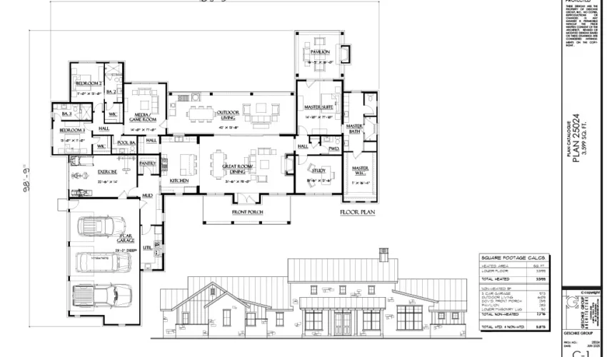
25024